


군북농공단지 청년문화센터
프로젝트
클라이언트
위치
연도
단계
용도
규모
설계
더보기
설명
군북농공단지 청년문화센터
함안군청
경남 함안군 군북면
2025
설계공모 제안
근린생활시설, 공동주택(기숙사)
1,069㎡
아티큐레이트 건축사사무소(임재휘)
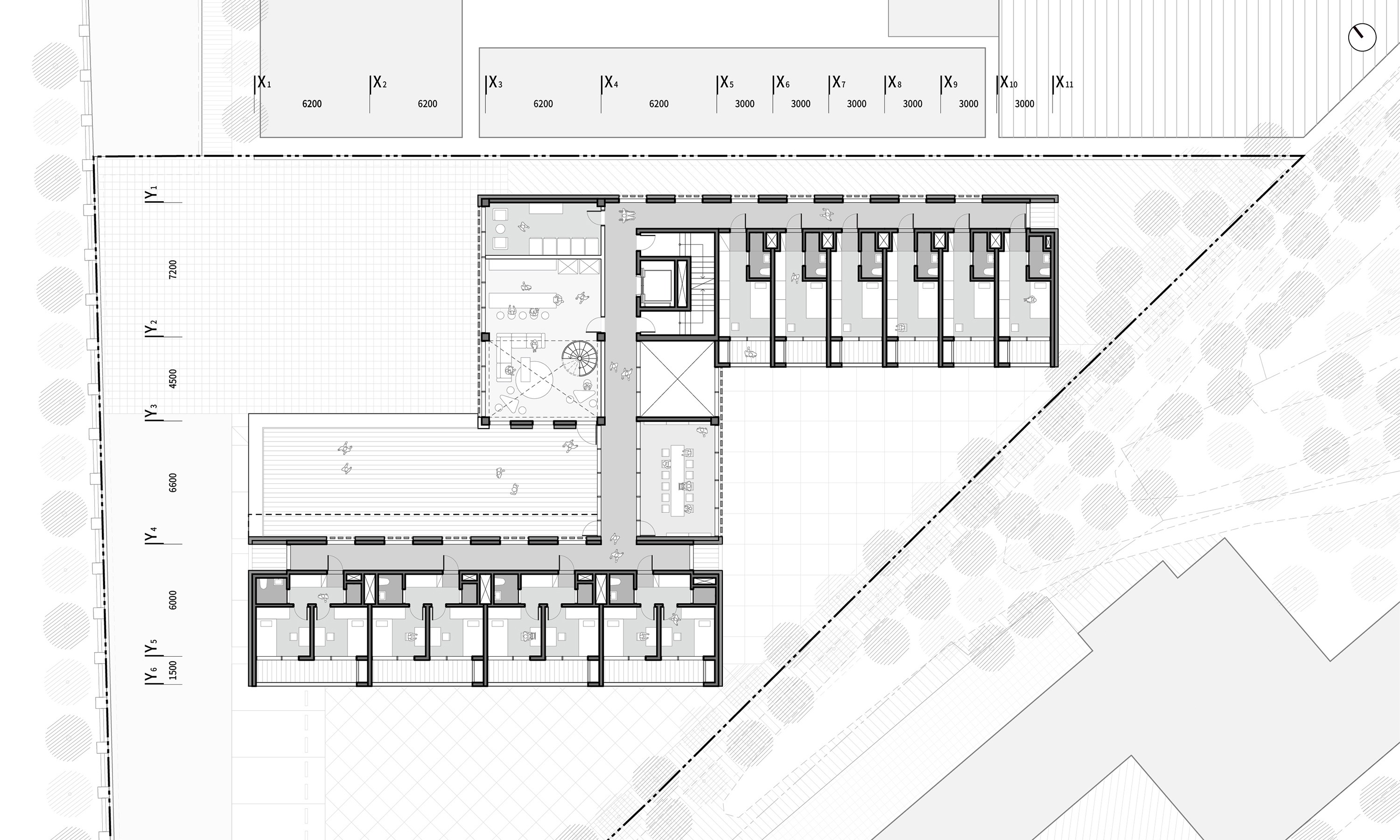
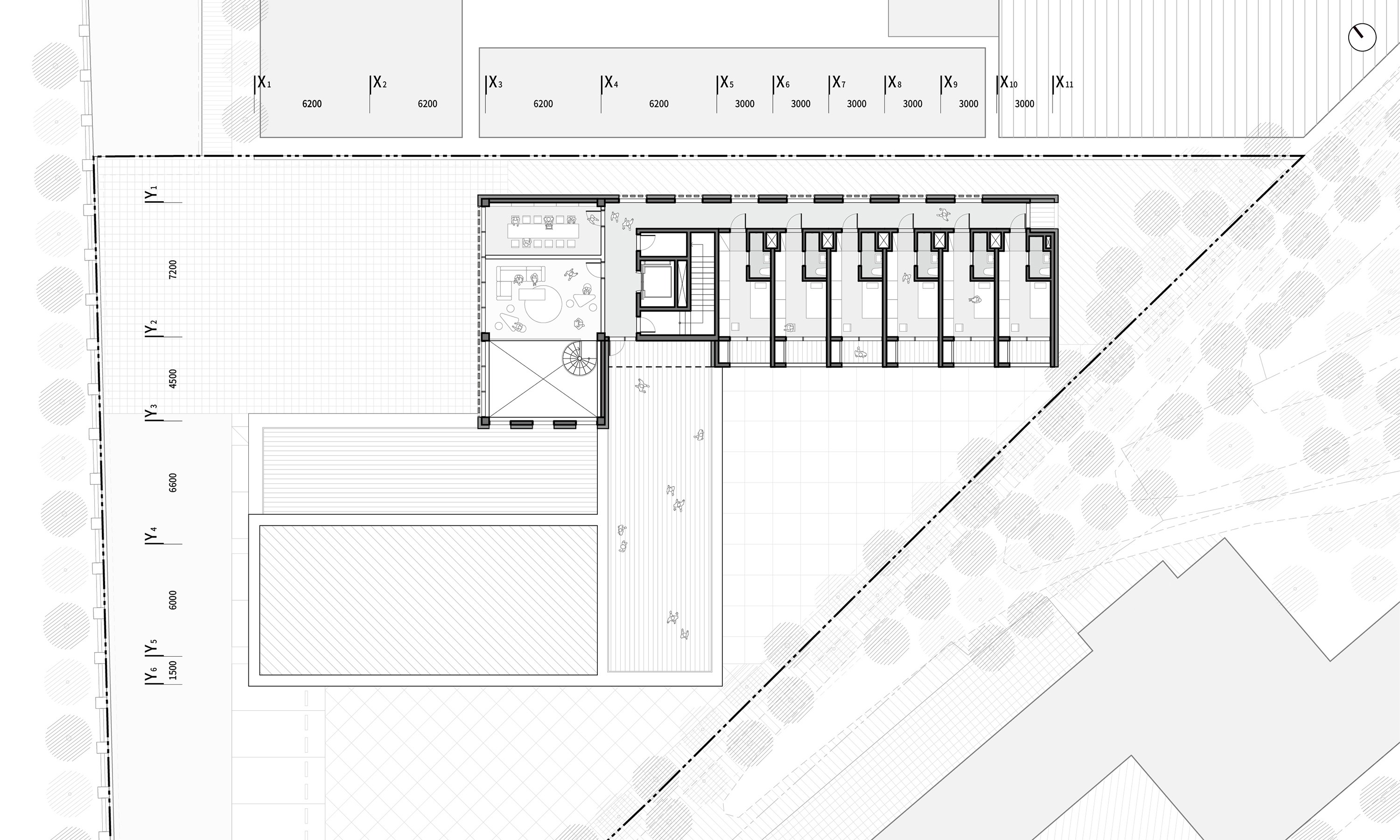
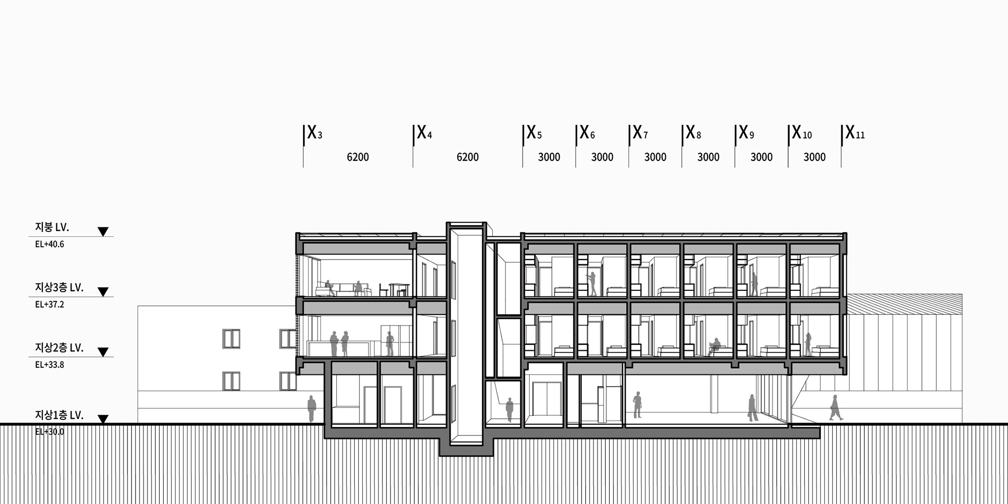
단지의 지형적 흐름에 따라 낮게 펼쳐지는 군북농공단지 청년문화센터는 단지의 규준선을 따라 기능적으로 흐르며 하나의 연속된 선으로 자리한다. 접지층의 공적영역은 요구된 프로그램을 수용하며 외부공간을 매개하고, 각각의 마당으로, 대상지 내부로, 단지로, 지역으로 확장된다. 기숙사의 사적영역은 공적영역과 분리되어 내부의 질서를 조성하고, 공동영역과 생활영역 간 일상적 동선을 연결하며 작은 만남을 유도한다. 간결한 공간 구조 체계 안에서 생활과 프로그램의 밀도, 일상의 관계와 거리가 미세하게, 하지만 분명하게 설정된다.
1.청년문화센터의 이해, 공적-사적영역의 프로그램적 충돌과 공존
군북농공단지 청년문화센터는 단지근로자를 위한 기숙사/식당 등을 제공하는 근로지원시설 및 거주시설이기도 하며, 동시에 다목적문화실/피트니스실/식당 등 기숙사 거주자/단지근로자를 포함한 지역 주민을 위한 편의시설을 제공하는 곳이다. 이러한 요구는 공적성격의 근로지원/편의시설과 사적성격인 기숙사 간 단일 시설의 집약적/응축적 배치가 전제되며, 기숙사 영역의 프라이버시의 관점에서의 충돌이 불가피하다. 다만, 제한된 건축의 단일 규모 내 지역 사회의 공공 기여를 필요로 하는 오늘날의 지역 청년문화센터가 맞닥뜨리는 보편적인 이중성에 주목하며, 상반된 각각의 특성의 상황에 충실하며, 서로의 기능을 위하여 분리하기도 하며 동시에 상호 보완하며 공존하기도 하는, 섬세한 건축적 전략으로 접근한다.
2.공적영역의 설정, 공공성 확보의 느슨한 정도
대상지는 농공단지의 조성에 의한 규준선 축이 교차하는 단부에 위치하며, 단지 근로자의 지원시설 제공 역할에 더불어 남측으로 이어지는 대암마을, 나아가 덕대리 지역사회에 공공적 기능을 동시에 제공하여야 하는 입지적 역할을 하고 있다. 제시된 청년문화센터의 규모와 견주어 식당/다목적문화실/피트니스실 등 요구되는 실의 수는 적은 듯 많으며, 면적은 넓은 듯 좁다. 이러한 양가적 조건을 해결하기 위하여, 홀/카페를 통하여 각 공간으로 유도되는 간결한 동선을 함축하여 구성하고, 3개의 프로그램에 면한 3개의 외부마당을 연접 조성하여 마당을 매개하여 확장토록 하여 느슨한 정도의 공공성을 확보한다.
3.사적영역의 보호, 프라이버시의 건축적 접근
기숙사 거주민에게 1층 프로그램은 편한 잠옷 차림으로 가는 것이 마땅한 기숙사 내부 편의시설이기도, 외부인과 섞여 식사를 하거나 운동을 하는 등 공적 성격의 시설이기도 하다. 이러한 이중성에 기인하여 2-3층 기숙사 거주민이 이용하는 사적영역은 프라이버시의 건축적 접근, 즉, 물리적/동선적/시각적 분리 등이 반드시 수반되어야 한다. 거주영역의 사적 처리는 1층에서 이미 시작된다. 1층의 개방성은 보편적인 공공건축의 물리적/수직적 연계를 강조한 건축 조성 어법이 아닌, 홀 상부 2층의 유리로 구획된 보이드를 통하여 시각적/제한적으로 수직 제공되며, 사실상 거주민을 위한 승강기/계단은 간결하게 구성되어 기숙사 거주민이 전용으로 편안하게 이용할 수 있도록 한다. 2-3층의 사적 성격은 공용복도-공유거실/주방 등 공동영역-개별실의 생활영역으로 점진적으로 강화되며, 외부데크/외장의 조적 처리/각 실의 발코니 등을 통하여 버퍼된다.
군북농공단지 청년문화센터
함안군청
경남 함안군 군북면
2025
설계공모 제안
근린생활시설, 공동주택(기숙사)
1,069㎡
아티큐레이트 건축사사무소(임재휘)
단지의 지형적 흐름에 따라 낮게 펼쳐지는 군북농공단지 청년문화센터는 단지의 규준선을 따라 기능적으로 흐르며 하나의 연속된 선으로 자리한다. 접지층의 공적영역은 요구된 프로그램을 수용하며 외부공간을 매개하고, 각각의 마당으로, 대상지 내부로, 단지로, 지역으로 확장된다. 기숙사의 사적영역은 공적영역과 분리되어 내부의 질서를 조성하고, 공동영역과 생활영역 간 일상적 동선을 연결하며 작은 만남을 유도한다. 간결한 공간 구조 체계 안에서 생활과 프로그램의 밀도, 일상의 관계와 거리가 미세하게, 하지만 분명하게 설정된다.
1.청년문화센터의 이해, 공적-사적영역의 프로그램적 충돌과 공존
군북농공단지 청년문화센터는 단지근로자를 위한 기숙사/식당 등을 제공하는 근로지원시설 및 거주시설이기도 하며, 동시에 다목적문화실/피트니스실/식당 등 기숙사 거주자/단지근로자를 포함한 지역 주민을 위한 편의시설을 제공하는 곳이다. 이러한 요구는 공적성격의 근로지원/편의시설과 사적성격인 기숙사 간 단일 시설의 집약적/응축적 배치가 전제되며, 기숙사 영역의 프라이버시의 관점에서의 충돌이 불가피하다. 다만, 제한된 건축의 단일 규모 내 지역 사회의 공공 기여를 필요로 하는 오늘날의 지역 청년문화센터가 맞닥뜨리는 보편적인 이중성에 주목하며, 상반된 각각의 특성의 상황에 충실하며, 서로의 기능을 위하여 분리하기도 하며 동시에 상호 보완하며 공존하기도 하는, 섬세한 건축적 전략으로 접근한다.
2.공적영역의 설정, 공공성 확보의 느슨한 정도
대상지는 농공단지의 조성에 의한 규준선 축이 교차하는 단부에 위치하며, 단지 근로자의 지원시설 제공 역할에 더불어 남측으로 이어지는 대암마을, 나아가 덕대리 지역사회에 공공적 기능을 동시에 제공하여야 하는 입지적 역할을 하고 있다. 제시된 청년문화센터의 규모와 견주어 식당/다목적문화실/피트니스실 등 요구되는 실의 수는 적은 듯 많으며, 면적은 넓은 듯 좁다. 이러한 양가적 조건을 해결하기 위하여, 홀/카페를 통하여 각 공간으로 유도되는 간결한 동선을 함축하여 구성하고, 3개의 프로그램에 면한 3개의 외부마당을 연접 조성하여 마당을 매개하여 확장토록 하여 느슨한 정도의 공공성을 확보한다.
3.사적영역의 보호, 프라이버시의 건축적 접근
기숙사 거주민에게 1층 프로그램은 편한 잠옷 차림으로 가는 것이 마땅한 기숙사 내부 편의시설이기도, 외부인과 섞여 식사를 하거나 운동을 하는 등 공적 성격의 시설이기도 하다. 이러한 이중성에 기인하여 2-3층 기숙사 거주민이 이용하는 사적영역은 프라이버시의 건축적 접근, 즉, 물리적/동선적/시각적 분리 등이 반드시 수반되어야 한다. 거주영역의 사적 처리는 1층에서 이미 시작된다. 1층의 개방성은 보편적인 공공건축의 물리적/수직적 연계를 강조한 건축 조성 어법이 아닌, 홀 상부 2층의 유리로 구획된 보이드를 통하여 시각적/제한적으로 수직 제공되며, 사실상 거주민을 위한 승강기/계단은 간결하게 구성되어 기숙사 거주민이 전용으로 편안하게 이용할 수 있도록 한다. 2-3층의 사적 성격은 공용복도-공유거실/주방 등 공동영역-개별실의 생활영역으로 점진적으로 강화되며, 외부데크/외장의 조적 처리/각 실의 발코니 등을 통하여 버퍼된다.





















































